• Projects
  • Services
  • Software
  • About US
  • Blog
  • Contact
Pointknown

Residential | Commercial | Industrial

  • Projects
  • Services
  • Software
  • About US
  • Blog
  • Contact

 

Residential | Commercial | Industrial

Winchester, Massachusetts

Welcome to a Pointknown Project in Winchester

You’re viewing a live residential renovation project documented in 3D by Pointknown.

Before design and construction move forward, we capture existing conditions accurately so homeowners and architects can work from reliable information instead of assumptions.

Pointknown documents existing conditions for homeowners, architects, and design teams so projects begin with accurate information.

Planning a Project? Contact Pointknown See More Projects
Winchester residential renovation documented by Pointknown

What’s Happening Here

This Winchester home is undergoing a major renovation supported by accurate existing-conditions documentation from Pointknown.

For this project, we created a full 3D digital model of the home so the owner and design team could evaluate renovation options before construction began. The work included documenting the existing house, supporting the conversion of a rear garage into home office space, and helping coordinate a new attached garage with covered access into the home.

Because additions like this need to connect cleanly to the existing structure, accurate documentation of roof lines, elevations, and geometry was critical from the start.

Why Accurate Existing Conditions Matter

Reduce Guesswork

Start design with reliable measurements and documented existing conditions.

Coordinate With Confidence

Tie new work into the existing home more clearly, especially where roofs, additions, and transitions get complex.

Make Better Decisions Earlier

Walk through the home digitally, review options sooner, and move into design with fewer surprises.

Project Visuals

A few views from the existing-conditions model and project visualization set.

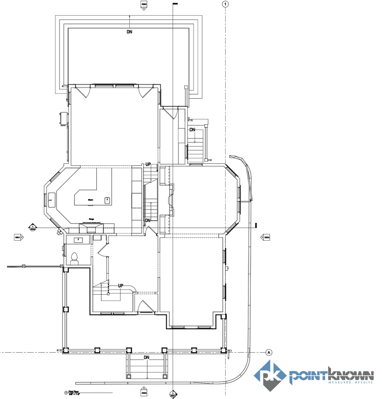
Project rendering Project drone view Existing 3D model view Architectural floor plan Existing Rendering Side Yard Render Backyard Render Architectural section 2D floorplan 2D Elevation

What Pointknown Delivered

For this Winchester renovation project, Pointknown provided the digital foundation used to support planning, visualization, and design coordination.

  • Existing-conditions Revit model
  • CAD exports for architectural design
  • Shareable 3D model access for review
  • Visualization support
  • Accurate elevation data to support new construction tie-ins

What We Actually Do

Pointknown documents homes and buildings as they exist today so architects, owners, and project teams can begin with accurate information.

That can mean creating a Revit model, CAD plans, 3D viewer access, or visual support that helps everyone understand the project before work begins. For renovations and additions, that early clarity can make a real difference.

Planning a Renovation or Addition?

If you’re considering a residential project and want a clear understanding of existing conditions before design begins, Pointknown can help.

Start Your Project Email Pointknown