Queen Anne Inn
Pointknown documented existing conditions at the historic Queen Anne Inn in Chatham, Massachusetts, delivering a clear, accurate digital baseline to support renovation planning, design coordination, and long-term facility decisions. Working within an active hospitality environment, the project required efficient capture methods that minimized disruption while maintaining high levels of accuracy.
Chatham is one of Cape Cod’s most storied coastal towns—shaped by maritime trade, fishing, and generations of seasonal visitors. The Queen Anne Inn itself traces back to the mid-1800s, originally built by the Taylor family, early promoters of Chatham as a vacation destination, and later operated by the Swan family for decades. Cape Cod Chronicle
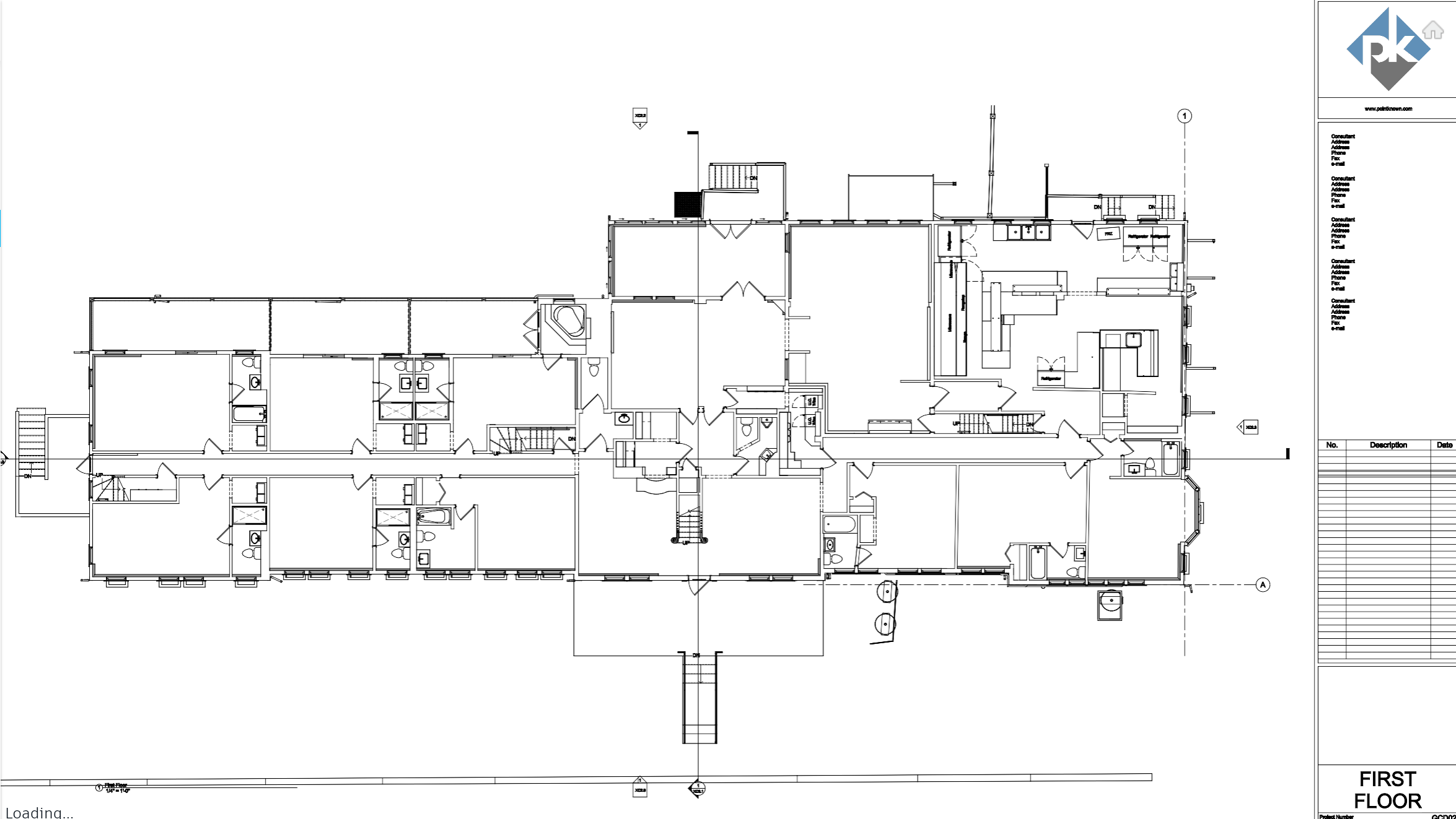
A complete existing conditions package, from reality capture to usable deliverables.
This project demonstrates the value of fast, minimally disruptive capture in active environments, combined with high-accuracy mobile LiDAR scanning for complete coverage. The result is a coordinated dataset that supports both 2D and 3D workflows, giving project teams a dependable foundation for renovation planning and long-term facility management.
The value is not in the scan itself. It is in what your team can do next.
Design-ready deliverables
Measured information is structured into clean Revit and CAD outputs so architects, owners, and developers can move quickly.
Clear communication
Pointknown focuses on clarity. The process stays in the background. The usable result stays front and center.
One source of truth
A single field effort supports visualization, planning, modeling, and documentation—without repeated site visits or fragmented information.
If you are planning, renovating, leasing, or evaluating a building, clear existing conditions matter.
Pointknown helps design teams and property stakeholders move forward with confidence by turning existing buildings into usable, decision-ready information.

