• Projects
  • Services
  • Software
  • About US
  • Blog
  • Contact
Pointknown

Residential | Commerical | Industrial

  • Projects
  • Services
  • Software
  • About US
  • Blog
  • Contact

Newton

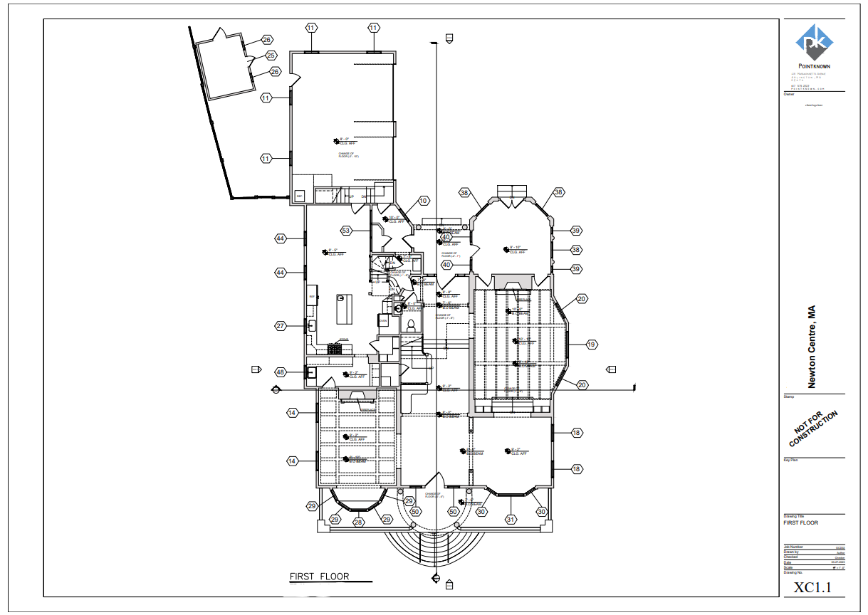
LOCATION: Newton, MA

HOME: This spectacular Victorian-inspired colonial, with a beautiful level backyard, is set in the heart of Newton Centre. Incredible detail abounds w/high ceilings, natural wood tones, an open floor plan with vista to the backyard, & a lovely staircase to the second level.

DELIVERABLE: AutoCAD 2D Views, Plans, Elevations and Sections

TECHNOLOGY: SLAM Laser Scanners Tripod Mounted and Handheld Laser Range Finders. DJII Phantom Drone, ReCap, Revit, GeoSLAM, Cloud Compare. Pix4D, GoPro Max, GoProPlayer.

LOCAL: Quick nosh at Rosenfeld Bagel

#Existing #Architecture #LaserScanning #RealityCapture #Renovation #Design #3D #MVY #MarthasVineyard #Floorplans #Elevations #Newton #MetroWest

Existing-Elevations-Newton.png
Elevations-Newton-Existing.png
Newton-Elevations-Details.png
Newton-Existing-Plans-3D.png
Laser-Scanning-Existing.png
Plans-Newton-Existing.png
Building-Documentation-Newton.png
Elevations-Existing-Newton.png
Laser-Scanning-Exterior-Newton.png
Laser-Scanning-Newton.png
Newton-Details-Plans.png
Sections-Newton-Existing-Drafting.png

Powered by Squarespace.