• Projects
  • Services
  • Software
  • About US
  • Blog
  • Contact
Pointknown

Residential | Commerical | Industrial

  • Projects
  • Services
  • Software
  • About US
  • Blog
  • Contact

Monomoy Nantucket

About the Property

In Monomoy, Nantucket, this waterfront estate blends island character with thoughtful architecture: a main house at the water’s edge, a garage with an apartment above and a small deck overlooking the pond, a greenhouse, and a garden shed. Jeep out front, surf gear in the garage—equal parts lifestyle and legacy.

Our Scope

We delivered a complete existing-conditions package across all structures:

High-accuracy laser scanning (LiDAR / reality capture)

Unified, registered point clouds

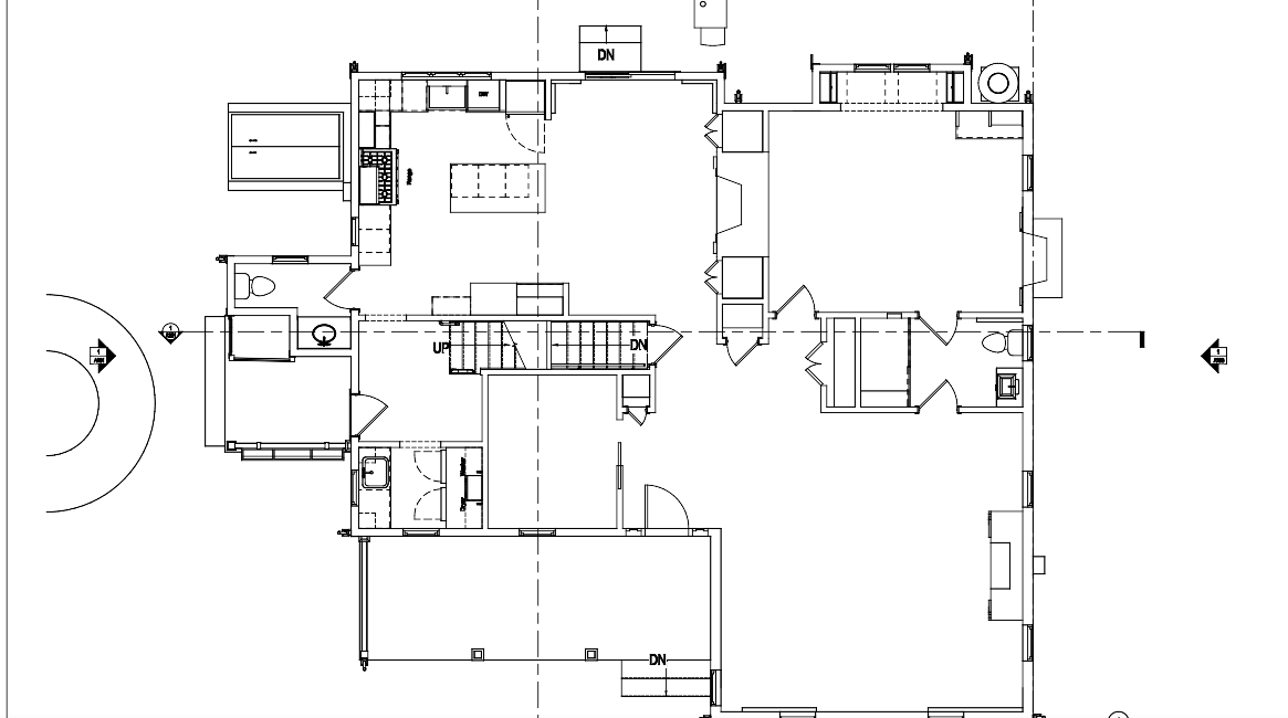
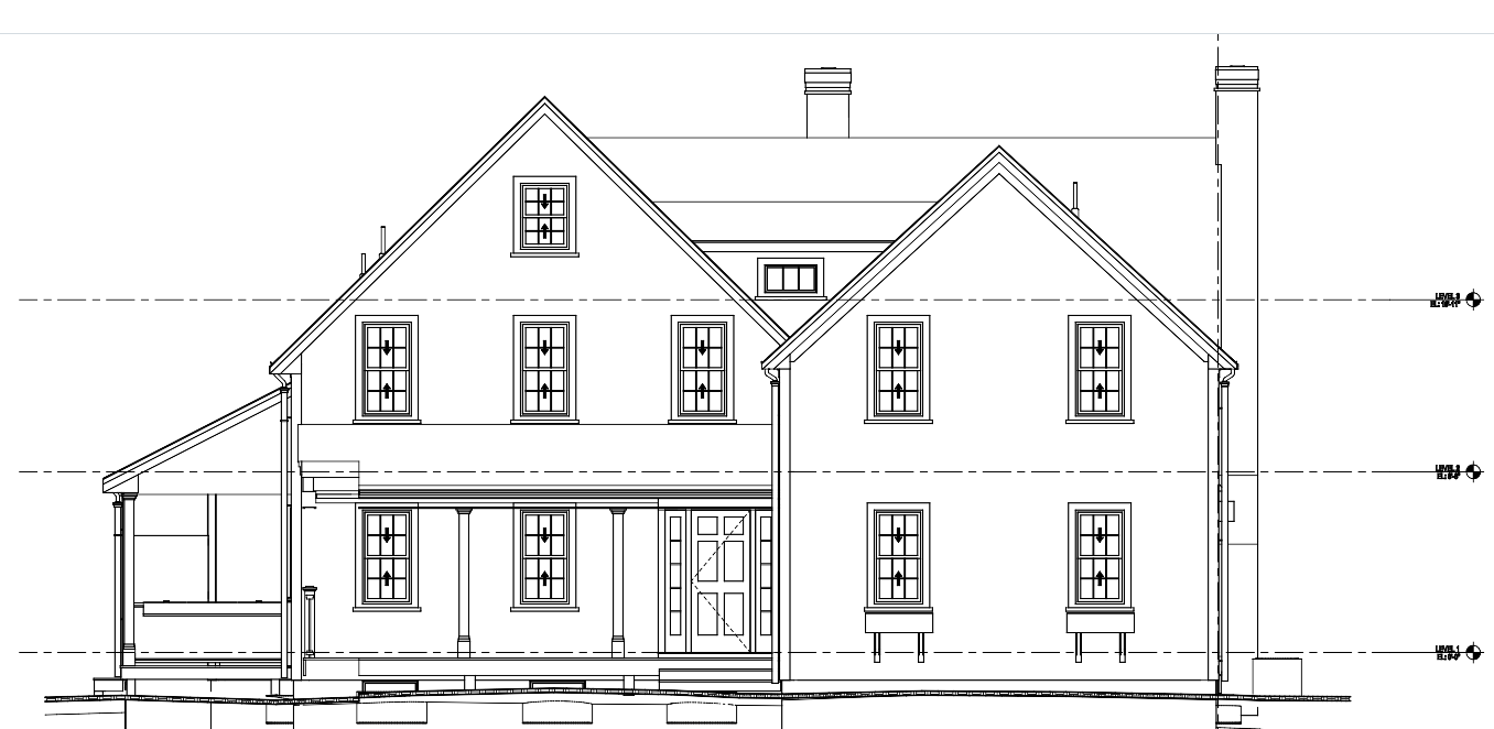
Revit/BIM modeling for architectural documentation

Key CAD exports and view presets

Why It Matters

Coastal sites demand precision. Accurate geometry prevents change-order surprises, speeds up design iterations, and preserves the look and feel that make Nantucket unique.

Deliverables

Revit model (architectural shell + primary interiors including kitchen and bath layouts and fixed equipment) and adjacent landscape and hardscape.

2D CAD exports (plans/elevations/sections as requested)

Basic area takeoffs / level datums

Photo references for key spaces and exterior conditions

Tech & Workflow

Mobile LiDAR capture

Targeted photogrammetry for select details

QA/QC against site control and benchmarks

Clean layer naming + view templates for immediate use

Project Highlights

Main house: shoreline alignment and fenestration captured precisely

Garage apartment: deck overlooking pond; interior captured for accurate layout

Greenhouse: glazing rhythm + structure modeled for daylight studies

Garden shed: modeled to contextualize viewsheds and site pathways

Service Area

From Nantucket and Martha’s Vineyard across New England, Pointknown documents existing conditions so architects, owners, and builders can plan with confidence.

Services: LiDAR scanning, point cloud, Revit/BIM, CAD exports

Client: Private (confidential)

Nantucket Home 3D Render
IMG_4379.JPG
Nantucket-3D-Scan.png
Nantucket-Exterior-Photo.png
Nantucket Elevation
Nantucket-Existing-Scan.png
Nantucket Floorplan
Nantucket-Home-Render-3D.png
Nantucket-Kitchen-Render.png
Nantucket Aerial
Nantucket-LIDAR.png
Nantucket-Site-Plan.png
Pointknown-on-site.png

Powered by Squarespace.