• Projects
  • Services
  • Software
  • About US
  • Blog
  • Contact
Pointknown

Residential | Commerical | Industrial

  • Projects
  • Services
  • Software
  • About US
  • Blog
  • Contact

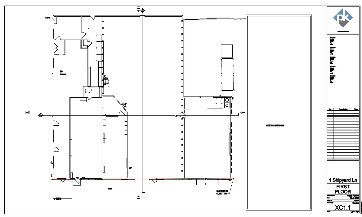
Kingman Yacht Center Pocasset

LOCATION: Pocasset, MA

SITE: Nestled in scenic, sheltered Red Brook Harbor on the eastern shore of Buzzards Bay Kingman Yacht Center is the largest full service marina on Cape Code and one of the highest rated marinas in North America.

SCOPE: Scan and Fly entire site to capture multiple buildings, site and hardscape. Model single structure scheduled for renovation, warehouse captured data for future use.

DELIVERABLE: Revit Model , SketchUp Model, Exported CAD Views, PDF.

TECHNOLOGY: SLAM Laser Scanners, Faro Focus, Tripod Mounted and Handheld Laser Range Finders. DJII Phantom Drone, ReCap, Revit, GeoSLAM, Cloud Compare. Pix4D, SketchUp,GoPro Max, GoProPlayer.

#3D #BIM #Revit #Architecture #YachtClub #Coastal #LaserScanning #RealityCapture #Renovation #Design #3D #CapeCod #Floorplans #Elevations #SketchUP

Kingsman Yacht Center
Kingman Yacht 2.png
Kingman Yacht 3.png
Kingman Yacht 4.png
Kingman Yacht 5.png
Kingman Yacht 6.png
3D Model Shipyard
Kingman Yacht 8.png

Powered by Squarespace.