• Projects
  • Services
  • Software
  • About US
  • Blog
  • Contact
Pointknown

Residential | Commerical | Industrial

  • Projects
  • Services
  • Software
  • About US
  • Blog
  • Contact

Campus Brewster NY

LOCATION: Brewster NY

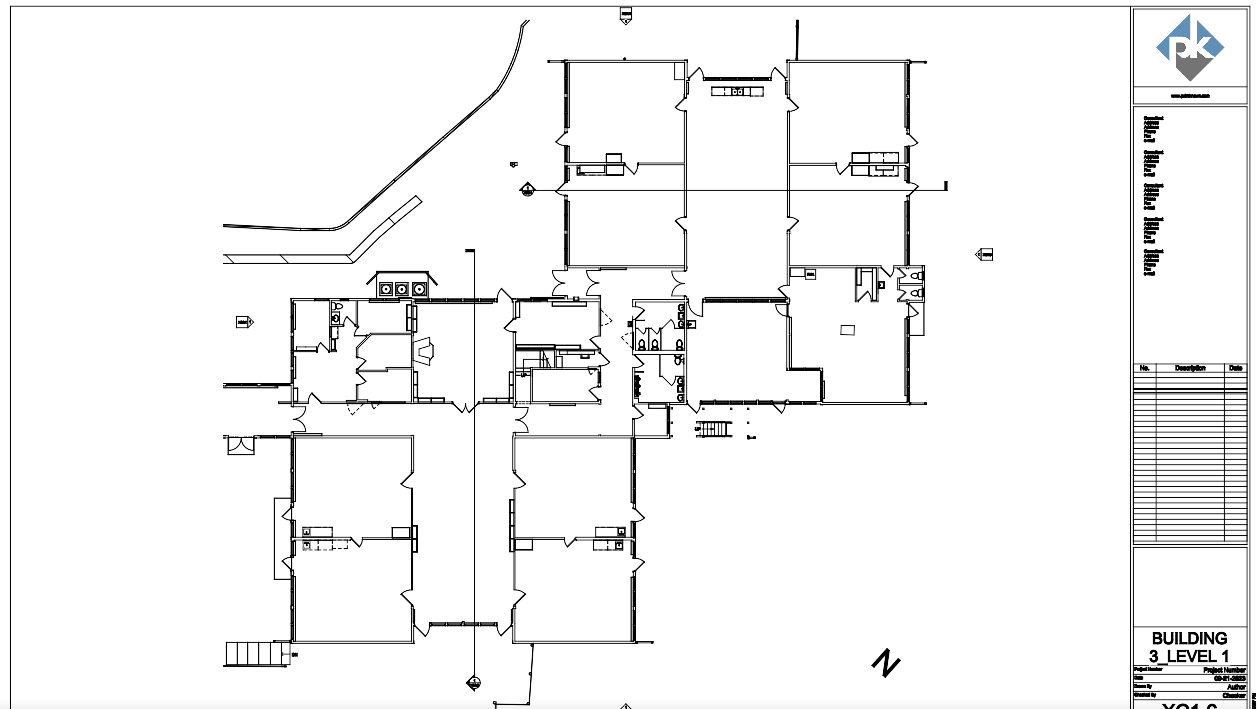
HOME: Campus of the former Melrose School in Brewster, NY.

DELIVERABLE: Revit Model, Sketch Up, AutoCAD, PDF

We scanned entire campus with a few different tool sets, include all buildings and terraformed the adjacent hardscape and landscape between buildings.

By modeling directly in Revit we were able to set up and export a variety of formats.

TECHNOLOGY: SLAM Laser Scanners, Faro Focus, Tripod Mounted and Handheld Laser Range Finders. DJII Phantom Drone, ReCap, Revit, GeoSLAM, Cloud Compare. Pix4D, GoPro Max, GoProPlayer. Red Bull

#3D #BIM #Revit #Architecture #LaserScanning #RealityCapture #Renovation #Design #3D #Campus #Floorplans #Elevations #Academic #SketchUp

Screenshot 2023-09-02 184651.png
Screenshot 2023-09-21 145818.png
Screenshot 2023-09-02 180719.png
Screenshot 2023-09-21 145617.png
Screenshot 2023-09-02 184344.png
Screenshot 2023-09-21 150106.png
Screenshot 2023-09-21 145528.png
Screenshot 2023-09-02 180548.png
Screenshot 2023-09-02 184434.png
Screenshot 2023-09-02 184500.png
Screenshot 2023-09-02 180637.png
Screenshot 2023-09-02 180802.png
Screenshot 2023-09-21 145709.png
Screenshot 2023-09-21 145750.png
Screenshot 2023-09-21 145903.png
Screenshot 2023-09-21 150002.png
Screenshot 2023-09-21 150133.png
Screenshot 2023-09-21 150200.png
Screenshot 2023-09-21 150257.png
Screenshot 2023-09-21 150346.png
Screenshot 2023-09-21 150600.png

Powered by Squarespace.