• Projects
  • Services
  • Software
  • About US
  • Blog
  • Contact
Pointknown

Residential | Commerical | Industrial

  • Projects
  • Services
  • Software
  • About US
  • Blog
  • Contact

Brooke Charter School

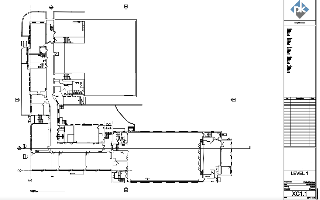
At Brooke Charter School in Roslindale, we documented the existing conditions of the campus with a full 3D Revit model. Our scope included a reflected ceiling plan (RCP), adjacent hardscape, and playground areas.

Our role was to capture and translate the built environment into accurate, usable models. By starting with a clear digital baseline, designers, planners, and educators can concentrate on what they do best — improving spaces for learning.

Brooke Roslindale has grown into one of the highest-performing schools in the city and state, currently serving 600 students in grades K–8.

Boston-3D-Lidar-School.png
Brook-Charter-Street-2.PNG
3D Render of Existing Building
3D-Scan-School-Boston.png
Boston-School-Gym-Revit Render.png
Existing-Boston-School-Revit.png
3D-Scan-Boston-School-Elevation.png
3D-Scan-Boston-School-Floorplan.png
3D-Scan-Boston-School-RCP.png

Powered by Squarespace.