• Projects
  • Services
  • Software
  • About US
  • Blog
  • Contact
Pointknown

Residential | Commercial | Industrial

  • Projects
  • Services
  • Software
  • About US
  • Blog
  • Contact

Winchester

Visualizing Change Before Construction Begins

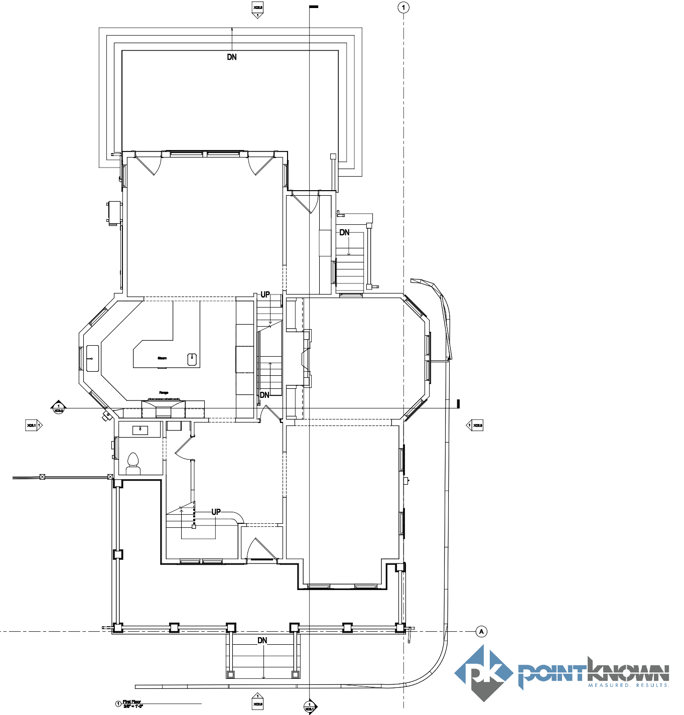
For this residential project in Winchester, Massachusetts, the homeowner engaged Pointknown to create a complete 3D digital model of the existing home—not just for architectural documentation, but to fully visualize and evaluate a major renovation before design decisions were finalized.

The scope included transforming an existing rear garage into a home office and designing a new, attached garage that allows covered access directly into the house—an especially valuable upgrade for a growing family navigating New England weather.

Project Goals

Create a highly accurate existing-conditions 3D model

Export architect-ready CAD drawings

Allow the homeowner to walk through the home digitally

Resolve complex roof geometry and tie-ins

Support confident decisions before construction begins

Existing Conditions Capture & Modeling

Pointknown developed a fully navigable Revit model of the home, providing a precise digital foundation for both the homeowner and the architect.

This level of accuracy was especially important on the garage side of the house, where a series of intersecting roof angles and varying pitches required careful documentation. Having correct existing elevations allowed the architect to confidently tie the new attached garage into the existing structure—minimizing assumptions and reducing downstream revisions.

3D Visualization for Owners & Architects

The completed Revit model was shared via Autodesk’s viewer, allowing the homeowner to:

Walk through the home virtually

Understand spatial relationships and volumes

Evaluate how new spaces connect to existing ones

Make informed design decisions early

To complement the technical model, the project was also visualized in Twinmotion, adding realistic lighting, materials, and context. This helped the homeowner experience the project as it will feel—not just how it measures.

Deliverables

Existing-conditions Revit model

CAD exports for architectural design

Autodesk-hosted 3D model for client access

Twinmotion visualizations

Accurate elevation data supporting new construction

Why It Matters

When existing conditions are captured accurately and shared in 3D, design becomes more efficient and collaborative. Homeowners gain clarity, architects gain confidence, and projects move forward with fewer surprises.

Wildwood Winchester.png
Winchester-3D-Elevation.png
Winchester-3D-Elevation-Architectural.png
Winchester-3D-Render.png
Winchester-3D-Floorplan.png
Winchester-3D-Floorplan-Existing.png
Winchester-Existing-3D.png
Winchester-3D-Render-Existing.png
Winchester-3D-Render-LIDAR.png
Winchester-3D-Section.png
Winchester-Drone.png
pointknown-wildwood-street-existing-conditions-plan.png