• Projects
  • Services
  • Software
  • About US
  • Blog
  • Contact
Pointknown

Residential | Commerical | Industrial

  • Projects
  • Services
  • Software
  • About US
  • Blog
  • Contact

Westwood NJ

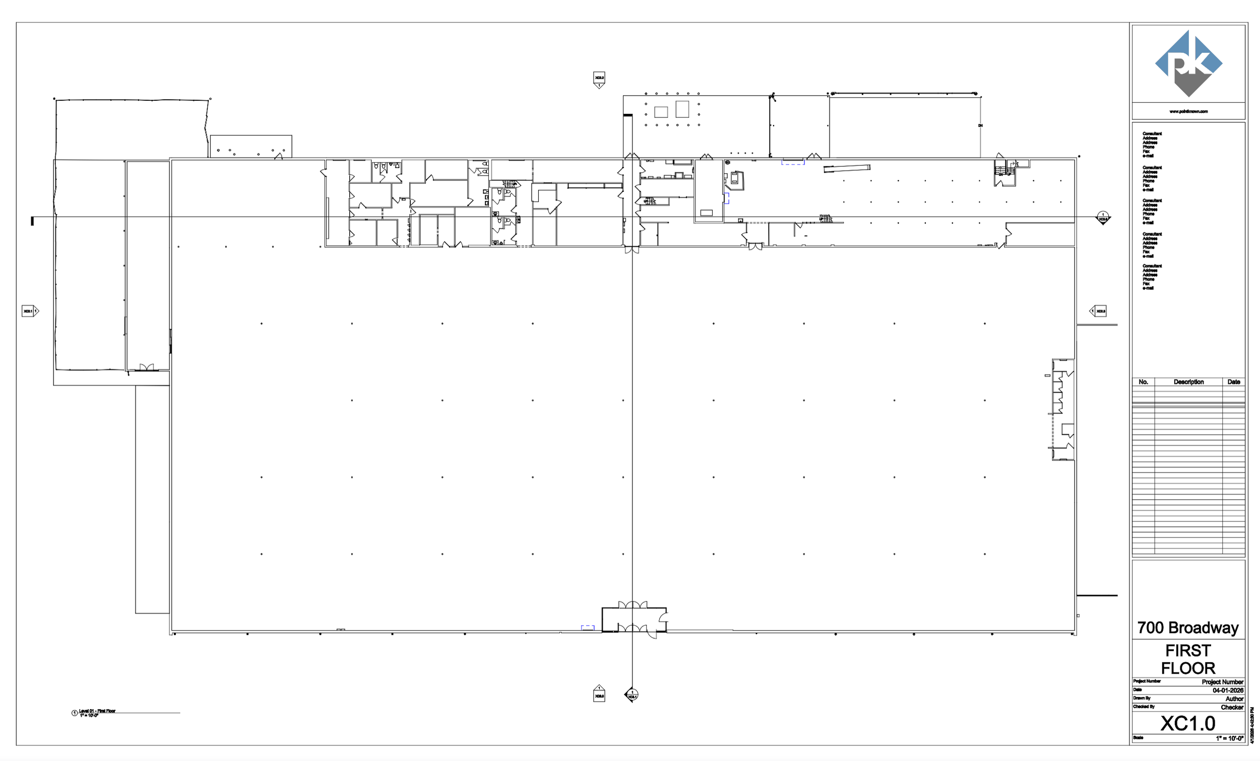
Pointknown provided fast-turnaround existing conditions documentation for a large commercial shopping plaza at 700 Broadway in Westwood, New Jersey. The assignment included capture and modeling of the entire 300,000+ SF site, along with a detailed Revit model of the 90,000 SF former Kmart end cap. The project combined mobile LiDAR, drone photography, 360 video, CAD deliverables, and site modeling to give the ownership team reliable information early in due diligence.


For owner-operators and commercial real estate teams, speed matters. In this case, the client needed accurate documentation quickly so they could begin evaluating layouts, marketing space, and moving conversations forward during due diligence.

We captured the full site using GeoSLAM mobile LiDAR, supplemented with more than 400 aerial drone photos and full 360 video coverage. From that fieldwork, we delivered a full exterior digital baseline of the shopping plaza, including surrounding hardscape, roof equipment, and overall site conditions.

The most immediate need was inside the former Kmart end cap. Pointknown produced basic CAD floor plans, column grids, and square footage calculations within 48 hours of the site visit, then plotted the plans to PDF for distribution across the client’s organization. That early package helped the ownership team begin planning and marketing well before a full model would typically be ready.

From there, we developed a detailed Revit model of the entire end cap unit, including all interior spaces, mezzanine areas, and exposed trusswork, along with the broader exterior scope across the full site. The result was a practical existing-conditions foundation that supported space planning, retail layouts, shelving and racking studies, and downstream visualization work.

Services Provided

Mobile LiDAR scanning

Drone capture

360 video documentation

Expedited CAD floor plans

Square footage calculations

Column grid documentation

Revit modeling

Site and hardscape capture

Roof equipment documentation

PDF plan sets for internal distribution

Key Project Value
This project gave the client something valuable during due diligence: usable information fast. With accurate plans and square footage in hand almost immediately, the team could start marketing the space, exploring subdivision options, and engaging prospective tenants earlier in the process.


Need existing conditions fast enough to keep a deal moving?
Start Project Request

Westwood-Drone-Capture-Pointknown.png
Westwood-NJ-Existing-Conditions-3D.png
Westwood-NJ-Existing-Aerial-CApture-Pointknown.png
Westwood-NJ-Existing-Roof-Capture.png
Westwood-Rooftop-Mobile-Laser-Scan-Pointknown.png
Westwood-NJ-Existing-Conditions-Interior-3D.png
Westwood-NJ-Existing-Conditions-Photography-Interior.png
Westwood-NJ-Existing-3D-Render.png
Westwood-NJ-Existing-3D-Render-Exterior.png
Westwood-Existing-Conditions-Plans.png
Westwood-NJ-Existing-Revit-Pointknown.png
Existing-Floorplan-Westwood-Pointknown.png
Westwood-Fast-Space-Calculations-Pointknown.png