• Projects
  • Services
  • Software
  • About US
  • Blog
  • Contact
Pointknown

Residential | Commercial | Industrial

  • Projects
  • Services
  • Software
  • About US
  • Blog
  • Contact

 

Boston, Massachusetts · Historic Existing Conditions

Exeter Street Theater / First Spiritual Temple

A landmark at the corner of Exeter and Newbury, documented in 3D so architects, owners, and design teams can work from accurate existing conditions instead of assumptions.

Historic Boston Landmark Laser Scanning + Drone Capture Revit Model + CAD Deliverables Exterior Detail Documentation
Project Overview

More than a building to measure

Some properties are straightforward. This one is not. At the corner of Exeter and Newbury, this Boston landmark carries deep architectural character, layered history, and the kind of geometry that deserves more than a quick field sketch and a loose floor plan.

Pointknown documented the full building and exterior details to create a reliable digital baseline: a coordinated existing-conditions model that could support planning, visualization, renovation, and future design work with confidence.

The value here was not simply in recording dimensions. It was in translating a historically significant structure into usable, design-ready information without flattening the complexity that makes the building what it is.

Point cloud and surrounding context of the Exeter Street building
Registered existing-conditions data tied together into a coordinated digital baseline.
Location Newbury & Exeter Street, Boston, MA
Building Story Historic temple, theater, and adaptive reuse structure with layered conditions
Scope Full building capture, exterior detail documentation, model creation, and drawing output
Deliverables Revit model, 3D DWG, 2D plans/elevations, SketchUp-ready geometry

Historic character, translated into a working model

The goal was to preserve what matters in digital form: massing, façade rhythm, roof form, street relationship, and the accumulated changes that shape how the building is actually understood today.

Street view of the Exeter Street Theater / First Spiritual Temple building
The building as it sits within Back Bay’s streetscape.
Rendered 3D model of the historic building
A detailed exterior model ready for coordination, review, and downstream use.
Narrative

A building with a story worth keeping intact

This project works best when it is framed as a continuity story. A Boston landmark with a long public life became a documentation problem, then a modeling problem, then a decision-making asset.

Instead of treating history as a sidebar, the page should let the building’s architectural identity lead the narrative. That makes the technical work feel more valuable, because the audience immediately understands why precision matters here.

For architects, preservation-minded owners, and adaptive reuse teams, the result is simple: better information at the beginning leads to better decisions later.

Workflow

How Pointknown documented the property

Capture

Mobile scanning, supplemental control measurements, 360 capture, and drone-derived data were combined to record both the building and its exterior context.

Register

The datasets were aligned into a usable existing-conditions environment so the building could be reviewed as a coherent whole rather than as disconnected field information.

Model

The point cloud and supporting imagery were translated into a detailed Revit model capable of supporting additional views, drawings, and downstream design workflows.

Deliver

Final outputs included a Revit model, 3D DWG, 2D plan and elevation documentation, and geometry that could continue into other platforms as the project evolved.

Capture. Register. Model. Verify.

The strength of the project is not just the model itself. It is the chain of evidence behind it: scan data, visual reference, exterior detail, and coordinated outputs that let the team trust what they are seeing.

Why It Mattered

Historic buildings do not behave like clean, modern shells

Buildings like this are full of decisions hidden in plain sight: façade thickness, stair relationships, roof form, structure, appendages, and accumulated modifications from different eras of use.

When those conditions are not documented clearly, design teams lose time rebuilding the building from fragments. When they are documented well, the project starts from understanding instead of uncertainty.

  • Exterior detail can be reviewed without repeated return visits
  • Historic massing and roof geometry are preserved in usable 3D form
  • Drawings and sections can be generated from a coordinated model base
  • Teams can plan renovation or reuse work with fewer assumptions
Front elevation drawing of the building
Elevation output built from coordinated model data.
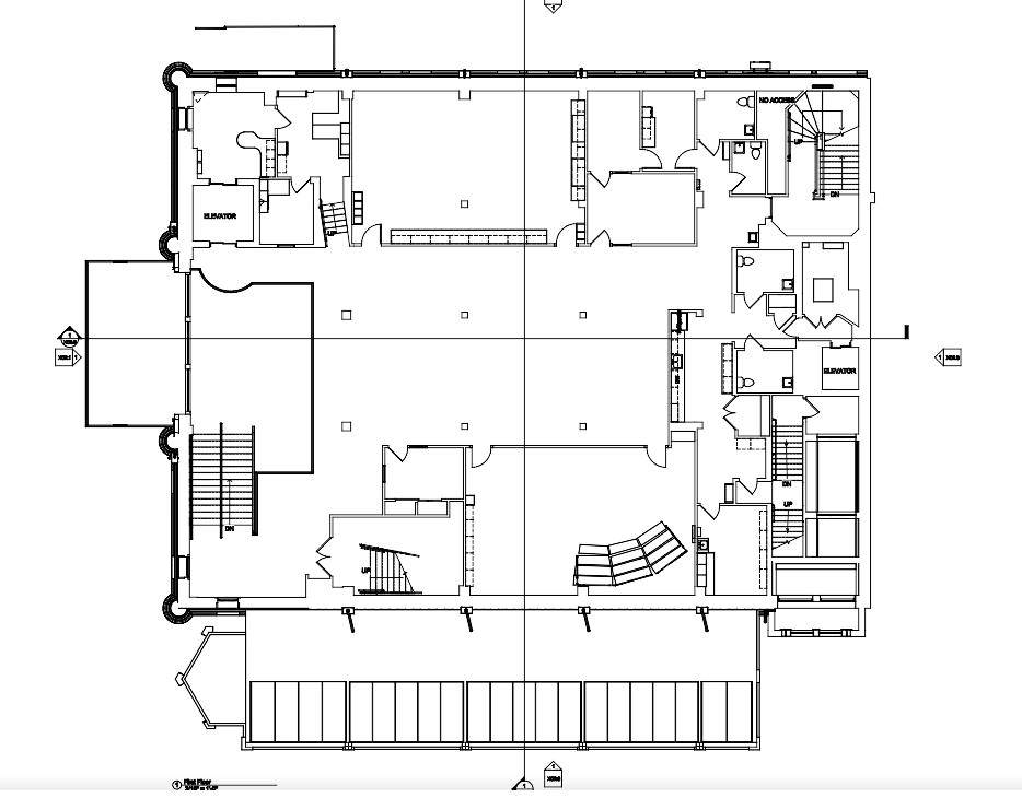
Plan drawing of the building
Plan documentation derived from the modeled existing conditions.
Selected Views

The story in images

Colored 3D model of the building
Model Overview Full-building massing and geometry translated into a clear digital asset.
Detailed model of exterior bar addition
Annex / Exterior Addition Secondary elements were modeled as part of the whole building story, not ignored.
Modeled decorative window and façade detail
Detail Work Ornamental conditions and façade character were preserved in the model.
Main entry of the building modeled in 3D
Main Entry Street-facing conditions were captured in a way that supports design and visualization.
Attic and roof framing model view
Roof / Structure Upper-level geometry and structural relationships were made visible for planning use.
Section cut through the building model
Section Cut Internal relationships become legible when the building is modeled, not guessed at.
Measure Once. Design Right.

Historic buildings deserve better than approximation

Pointknown helps architects, owners, and design teams turn complicated existing conditions into usable information—whether the project is a landmark restoration, adaptive reuse effort, or simply a renovation that needs a trustworthy starting point.

Start a Conversation View More Projects