• Projects
  • Services
  • Software
  • About US
  • Blog
  • Contact
Pointknown

Residential | Commerical | Industrial

  • Projects
  • Services
  • Software
  • About US
  • Blog
  • Contact

Eastham

Located in the wooded landscape of Eastham, Massachusetts, this mid century modern residence reflects a clear architectural language defined by structure, light, and a strong connection to its surroundings. Pointknown was engaged to capture and translate the property into a precise, future-ready digital model.

Using our standard reality-capture toolset — including mobile laser scanning, terrestrial LiDAR, and photogrammetry — we documented the full interior and exterior of the home, with particular attention to structural expression, roof geometry, glazing, and spatial relationships characteristic of mid century modern design.

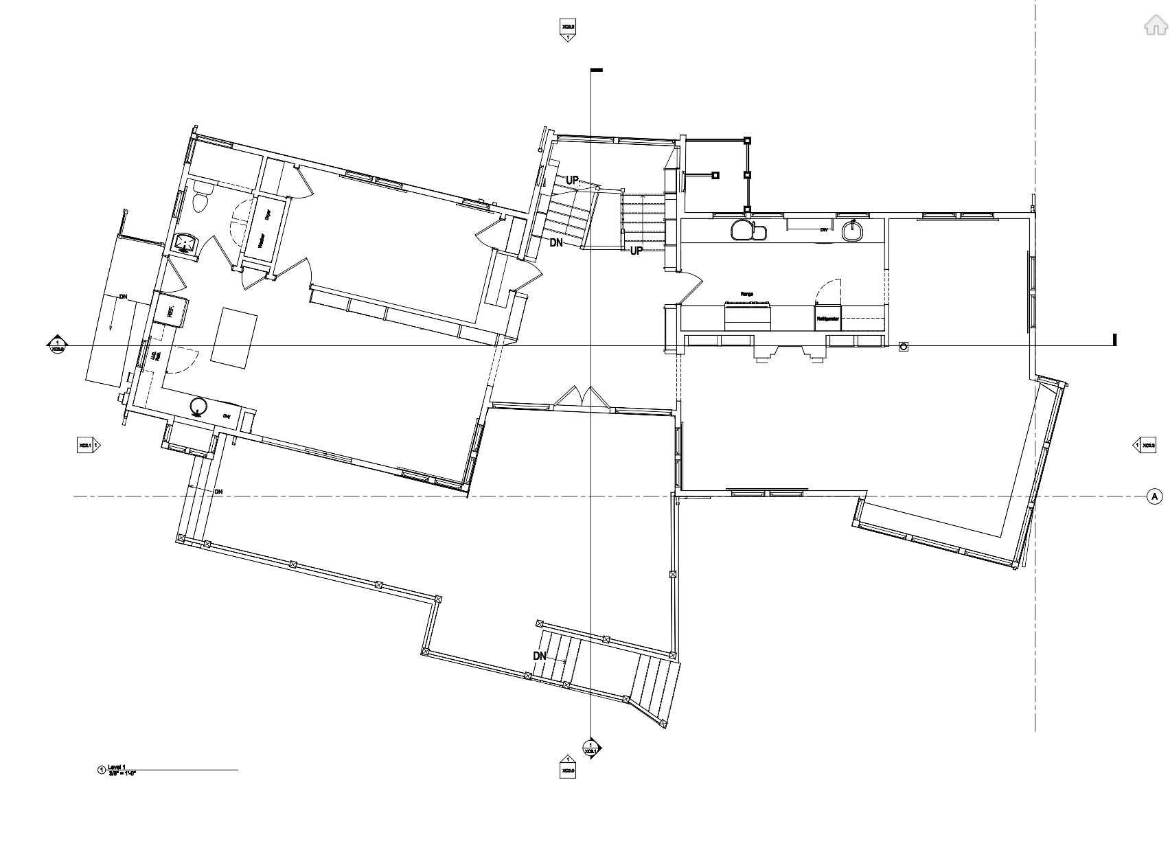
The captured data was processed into a high-fidelity existing-conditions Revit model, allowing the project team to work within a flexible BIM environment that supports design, documentation, and long-term reuse. From the Revit model, we generated CAD plans, sections, and elevations, enabling seamless integration into a wide range of architectural workflows.

The model was also brought into Twinmotion to produce a series of visualizations used to study massing, materials, and the home’s relationship to the surrounding landscape.

This project highlights Pointknown’s approach: accurate field capture, intelligent modeling, and deliverables designed to remain valuable well beyond a single phase of work.

Services Provided

Mobile & Terrestrial Laser Scanning (LiDAR)

Existing-Conditions Revit Modeling

CAD Plans, Sections & Elevations

Roof & Exterior Geometry Documentation

Architectural Visualizations (Twinmotion)

Multi-format, future-ready deliverables

Project Info

Location: Eastham, Massachusetts
Project Type: Residential – Mid Century Modern
Scope: Full building documentation & visualization

Eastham-3D-Scan-Model.png
Eastham-3D-Scan-Floorplan.png
Eastham-3D-Scan-Floorplan-Detail.png
Eastham-Existing-Elevation-Scan.png
Eastham-Existing-Elevation-Scan-Detail.png
Eastham-3D-Scan-Model-Section.png
Eastham-3D-Scan-LIDAR.png
3D-Scan-Eastham.png
3D-Scan-Interior-Eastham.png

Powered by Squarespace.