• Projects
  • Services
  • Software
  • About US
  • Blog
  • Contact
Pointknown

Residential | Commerical | Industrial

  • Projects
  • Services
  • Software
  • About US
  • Blog
  • Contact

Brookline

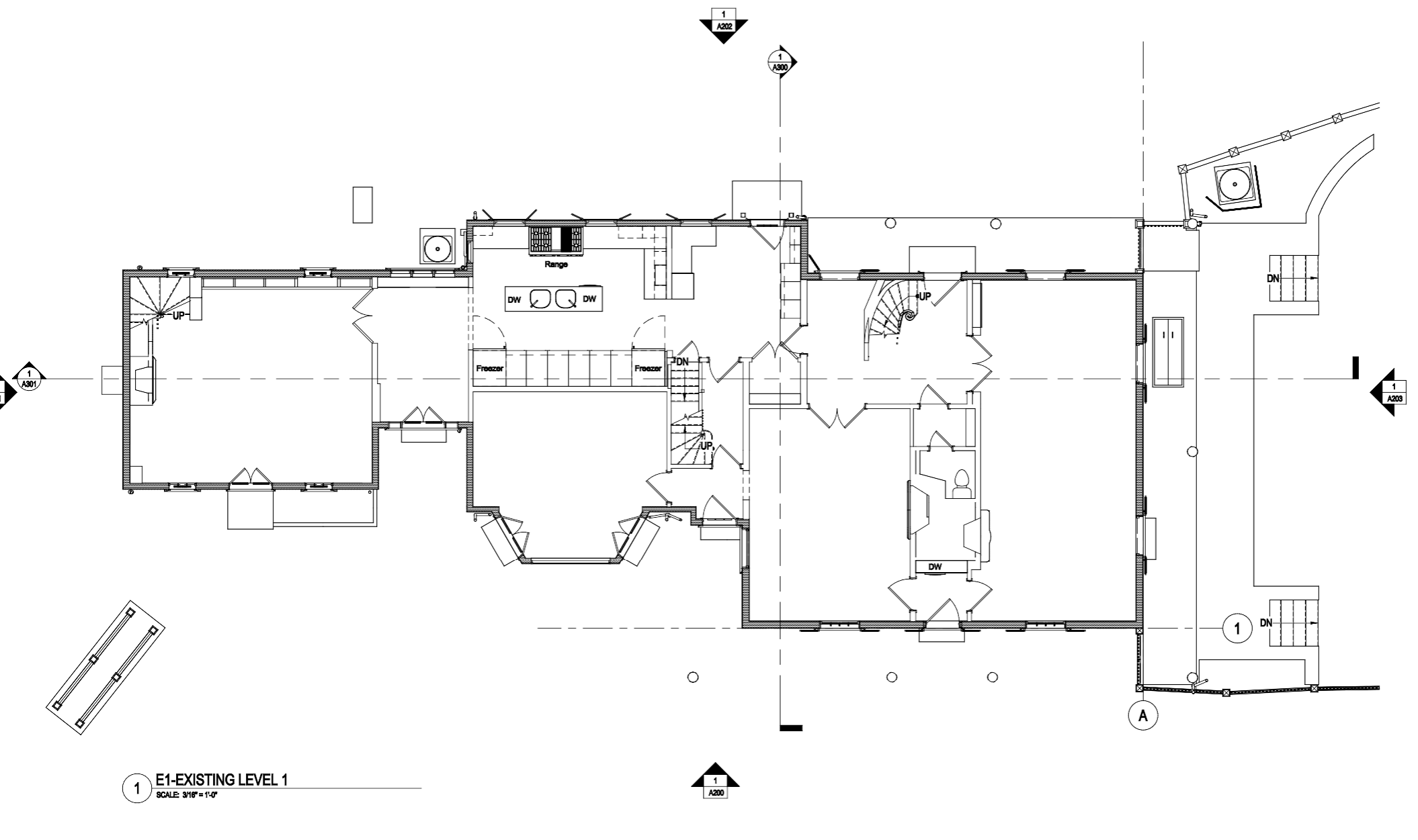
For this residential project in Brookline, Pointknown was engaged to document a Gothic Revival–style property where architecture and landscape are deeply interconnected. The scope extended well beyond the primary residence to include a detached carriage house, dramatic elevation changes, exposed ledge, and a natural stream running through the site.

The Gothic Revival style—defined by its vertical proportions, steep rooflines, and expressive detailing—demands an exceptional level of accuracy when preparing for renovation or restoration. Equally critical was capturing the surrounding terrain, where topography and natural features directly influence design feasibility, drainage, and constructability.

Using a combination of mobile laser scanning, terrestrial LiDAR, drone photogrammetry, and ground-based imagery, we created a unified digital representation of the entire property. The result is a highly accurate existing-conditions model that allows project teams to understand the site as a single, connected system—architecture, land, and natural features working together.

Scope of Work

Reality Capture

LiDAR scanning of the Gothic Revival main residence and carriage house

Drone capture of roof geometry, elevation change, and site context

Ground-based scanning of terrain, ledge outcroppings, and stream corridor

3D Modeling & Documentation

Detailed existing-conditions model of all structures

Modeled site topography reflecting true grade and slope

Ledge and natural site features modeled for design coordination

Stream alignment and surrounding landscape captured for planning and review

Deliverables

Coordinated 3D model suitable for architectural, structural, and civil workflows

Accurate base model supporting restoration, renovation, and permitting efforts

Why This Matters

Historic properties set within complex landscapes require more than traditional building documentation. By capturing both the Gothic Revival architecture and the natural terrain as one integrated dataset, design teams gain the clarity needed to:

Respect and preserve historic character

Anticipate grading, drainage, and foundation challenges

Reduce risk during permitting and construction

Make informed decisions grounded in real-world conditions

This approach is especially valuable for hillside and environmentally sensitive sites, where assumptions can quickly become costly.

Location

Brookline, Massachusetts

3D-Scan-Brookline-Revit.png
Existing-Conditions--Drone.png
3D-Scan-Brookline.png
3D-Scan-Brookline-LIDAR.png
3D-Scan-Brookline-Revit-2.png
Brookline-Existing-Elevation.png
Existing-Condition-Elevation-Brookline.png
Brookline-Existing-Floorplan.png
Existing-Condition-Floorplan-Brookline.png
3D-Kitchen-Scan-Brookline.png
3D-Scan-Brookline-Revit-3.png
Brookline-3D-Scan-Existing.png
Brookline-3D-Scan-Model.png
Existing-Conditions-Photo-Brookline.png
Existing-Conditions-Brookline.png
Existing-Condition-Section-Brookline.png

Powered by Squarespace.