• Projects
  • Services
  • Software
  • About US
  • Blog
  • Contact
Pointknown

Residential | Commercial | Industrial

  • Projects
  • Services
  • Software
  • About US
  • Blog
  • Contact

 

Boston, Massachusetts

Brighton Market

Existing conditions documentation for an active market, food court, mezzanine, roof, and urban commercial property at Commonwealth Avenue and Brighton Avenue.

100,000+ SF Mobile LiDAR RTK Drone Revit + CAD

Project Overview

Documenting an active Boston market and food court property.

Brighton Market is a large, active commercial property at the intersection of Commonwealth Avenue and Brighton Avenue in Boston. Historically home to an Asian market and food court environment, the property includes market areas, dining space, mezzanine levels, rooftop equipment, common areas, and surrounding site conditions.

Pointknown was brought in to create an updated existing conditions record using current capture tools and deliverables: mobile LiDAR scanning, RTK drone capture, 360 video documentation, CAD plans, space calculations, and a full Revit existing conditions model.

The assignment was not simply to measure the building. The goal was to turn a complex, active property into organized information that ownership, leasing, design, and development teams could use with confidence.

Urban Context

Commonwealth Avenue. Brighton Avenue. Boston conditions.

Active streets, tight site conditions, roof complexity, food court interiors, and an evolving commercial property — all captured as one coordinated documentation package.

Scope of Work

From market floor to rooftop equipment.

The documentation covered more than 100,000 square feet of market, food court, mezzanine, roof, and surrounding hardscape conditions.

Mobile LiDAR Scan

Interior capture of the market, food court, mezzanine, common areas, support spaces, and building circulation.

RTK Drone Capture

Aerial video and double-grid drone capture for exterior, rooftop, parking, and urban site context.

360 Video Documentation

Complete visual walkthrough documentation to preserve navigable field context for modeling and review.

Revit Existing Conditions Model

A coordinated model including architecture, reflected ceiling plan information, roof conditions, and rooftop equipment.

CAD Plans

2D plans developed for coordination, communication, leasing analysis, and planning conversations.

Space Calculations

Food court and common area calculations to support ownership, leasing, and future development analysis.

Brighton Market existing conditions Revit model showing roof equipment, storefronts, and site context

Revit Existing Conditions

A building record that works beyond the first drawing request.

The Revit model was developed as a practical foundation for design and planning — not just a visual reference. Roof equipment, storefront conditions, RCP information, interior layout, and site relationships were coordinated into a single usable record.

For active commercial properties, this level of documentation helps teams make better decisions earlier. It reduces guesswork, limits repeated field visits, and gives stakeholders a clearer way to understand the property.

Visualization

Existing conditions, made easier to understand.

Rendered views help communicate building context quickly — especially when ownership, design, leasing, and development teams need to understand the asset without digging through raw files.

Drawing Deliverables

Plans, sections, elevations, and space data.

The final package translated field capture into familiar, usable formats for project teams: Revit, CAD, plan graphics, sections, elevations, and leasing-related area calculations.

Brighton Market architectural elevation created from existing conditions documentation
Architectural Elevation
Brighton Market existing conditions floor plan created from scan and Revit documentation
Existing Conditions Floor Plan
Brighton Market existing conditions building section showing interior and roof conditions
3D Building Section
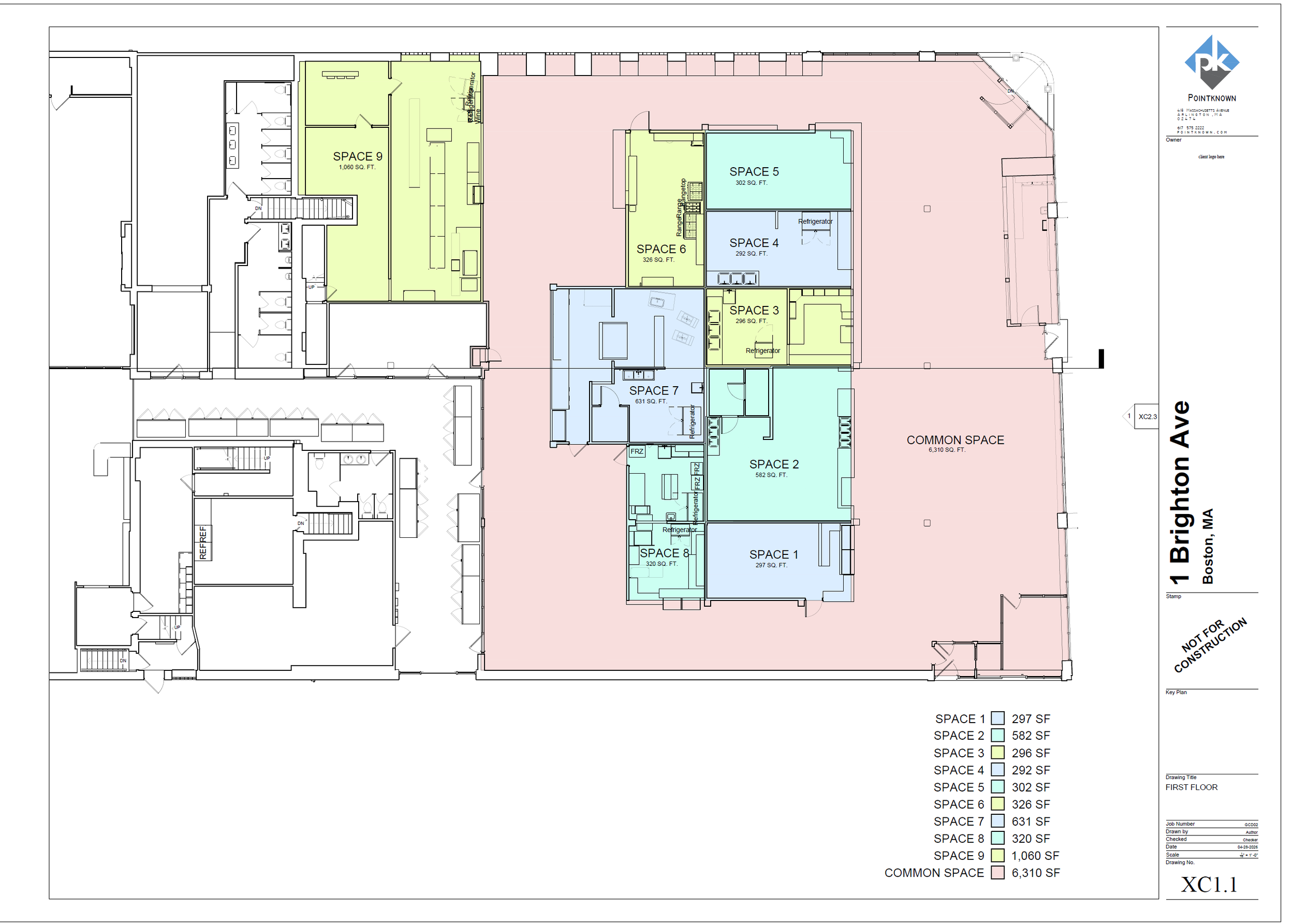
Brighton Market space calculation plan for food court and common areas
Food Court + Common Area Calculations

Why It Matters

Experience matters in Boston.

Boston properties rarely come with simple conditions. Busy streets, layered building histories, active interiors, mixed-use programs, tight site context, and complicated roofscapes all add complexity to existing conditions work.

Pointknown’s advantage is not just the equipment. It is knowing how to work efficiently in active environments, understand what owners, architects, developers, and consultants actually need, and translate field conditions into deliverables that are easy to use.

We measure carefully, organize clearly, and deliver information in formats that help teams move forward.

Outcome

A more useful record of a complex property.

The final deliverables gave the ownership and project team an updated, coordinated record of the property in the file types needed for real planning and decision-making.

Instead of relying on outdated drawings or fragmented information, the team could work from a more complete understanding of the building — including market areas, food court spaces, mezzanine conditions, roof equipment, common areas, and surrounding site context.

For active commercial properties, accurate documentation supports better leasing analysis, design coordination, redevelopment planning, and long-term asset management.

100,000+

SF documented

Revit

Existing conditions model

CAD

Plans + space calculations

Drone

Roof + site context

Measure Once. Use It Everywhere.

Ready to document an active commercial property?

Pointknown helps owners, developers, architects, and consultants turn complicated existing buildings into clear, usable documentation — from CAD plans and Revit models to drone capture, 360 video, roof documentation, and site context.

Start a Conversation